Bought with ERA High Pointe Realty
For more information regarding the value of a property, please contact us for a free consultation.
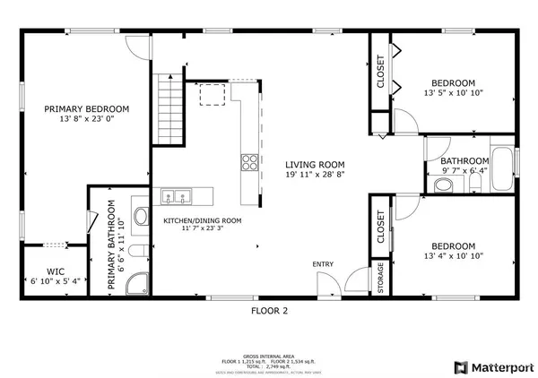
327 W 9th ST Chapman, KS 67431
Want to know what your home might be worth? Contact us for a FREE valuation!

Our team is ready to help you sell your home for the highest possible price ASAP
Key Details
Sold Price $230,000
Property Type Single Family Home
Sub Type Single Family Residence
Listing Status Sold
Purchase Type For Sale
Square Footage 3,240 sqft
Price per Sqft $70
MLS Listing ID 20250716
Sold Date 03/29/25
Style Other,Ranch
Bedrooms 4
Full Baths 3
Year Built 1964
Annual Tax Amount $3,478
Tax Year 2024
Lot Size 0.275 Acres
Property Sub-Type Single Family Residence
Source flinthills
Property Description
Welcome home to this fabulous new listing offered by Kyrsten Day with HOMEFRONT Real Estate Group! Take a look at this spacious and inviting home located in the heart of Chapman! Offering four bedrooms and three full bathrooms, ample storage space, detached two car garage, you're sure to settle nicely! Entire exterior was recently repainted and roof/HVAC system are less than ten years old! Call/Text Kyrsten today to schedule your showing on this great Chapman home!!
Location
State KS
County Dickinson
Rooms
Basement Daylight, Partially Finished, Walk-Out Access
Interior
Interior Features Breakfast Bar, Primary Bathroom, Primary Bedroom Walk-In Closet
Heating Natural Gas
Cooling Central Air, Attic Fan
Fireplaces Type None
Exterior
Parking Features Triple, Attached, Detached, Elec. Garage Door Opener
Garage Spaces 3.0
Fence Chain Link, Owned
Pool None
Roof Type Less than 10 years
Building
Building Age 41-60 Years
Structure Type Wood Siding
Schools
School District Chapman Usd 473
Read Less

GET MORE INFORMATION




